4 LOCALI ULTIMO PIANO CON DUE BOX

In vendita
4 o più locali
Dalmine
225.000 €
Descrizione
Dalmine (Sforzatica)
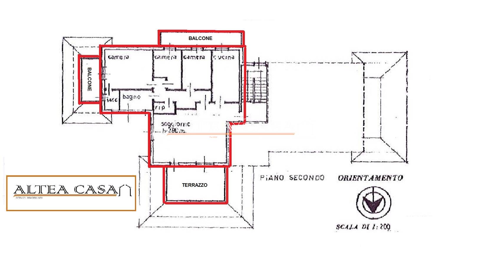
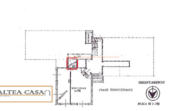
La palazzina signorile e tranquilla, composta da sole 8 unità abitative, è sita in centro paese comoda a raggiungere a piedi tutti i servizi. L'appartamento è posto al secondo e ultimo piano. L'ingresso si apre su un ampio e luminoso soggiorno, caratterizzato da elegante camino, con affaccio al terrazzo dalle generose metrature, dove trascorrere momenti di relax. A fianco si sviluppa la cucina abitabile, capace e accogliente, con accesso al balcone. Proseguendo nella zona notte troviamo due camere singole dai comodi spazi, ambedue con affaccio al balcone e servite da ampio bagno finestrato con vasca e doccia e da servizievole ripostiglio. Avanzando è collocata la camera matrimoniale, climatizzata, con bagno privato finestrato e uscita al secondo balcone. Completano la soluzione la cantina e due box singoli.

Le indicazioni, le planimetrie e le metrature commerciali riportate devono essere considerate indicative e non hanno alcun contenuto contrattuale.

Per maggiori informazioni contattateci al 035.37.01.31 (Ufficio Altea Casa - Dalmine (Bg) Viale G. Mazzini, 5/B).
Vi invitiamo a visitare il Nostro sito internet www.alteacasa.it o inviarci una e-mail all'indirizzo: info@alteacasa.it.
Caratteristiche principali
Codice:
V001347
Città:
Dalmine
Categoria:
4 o più locali
Spese condominiali:
2.200 € / anno
Locali:
4
Camere:
3
Bagni:
2
Mq:
140
Box:
2
Mq Box:
32
Posti auto:
1
Balconi:
1
Mq Balcone:
8
Terrazzi:
2
mq Terrazzo:
32
Piano:
2
Anno:
1977
Classe energetica:
F
256,27 kWh/m²a
Stato Immobile:
Buono
Grado:
Signorile
Posizione:
Centro
Panorama:
Vista Monti
Orientamento:
Nord Est Sud
Lati Liberi:
3
Giardino:
Comune
Arredi:
Non Arredato
Tipo Soggiorno:
Doppio
Tipo Cucina:
Abitabile
Riscaldamento:
Autonomo
Tipo Riscaldam.:
Caldaia
Tipo Impianto:
Radiatori
Fonte Energetica:
Metano
Acqua Calda:
Autonoma
Raffrescamento:
Split
Infissi:
Legno Doppio Vetro
Serramenti:
Buono
Persiana:
Oscurante Legno
Pavim. Giorno:
Parquet
Pavim. Notte:
Parquet
Pavim. Cucina:
Gres Porcellanato
Pavim. Bagno:
Parquet
Accesso Disabili:
No
Accesso interno disabili:
Non accessibile
Destinato a residenti:
Si
Accessori
Aria Condizionata
Armadio a Muro
Camino
Canna Fumaria
Cancello Elettrico
Doppi Vetri
Doppio Ingresso
Lavanderia
Parco Condominiale
Porta Blindata
Ripostiglio
Tavolini Esterni
Tende da Sole
Mappa
Via Kennedy, 17 - Dalmine (BG)
Cookie preference